Pillar Jib Crane OB

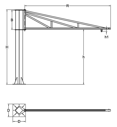
Freestanding jib crane for indoor use. The over braced profile jib crane is braced above the track profile. This jib crane provides the most free-running travel along the arm and gives excellent flexibility for rotations of 270°.

The jib crane is supplied in kit form and consists of two main parts

Show more

Part code:

Freestanding jib crane for indoor use. The over braced profile jib crane is braced above the track profile. This jib crane provides the most free-running travel along the arm and gives excellent flexibility for rotations of 270°.

The jib crane is supplied in kit form and consists of two main parts: the pillar and the arm. The pillar is designed and fabricated to suspend the required jib arm type. The arm is fixed to the column using a pivot pin.

Floor fixing is done with chemical anchors or anchor rods with foundation.

Features:

  • Capacity up to 1000 kg
  • Outreach up to 6 m
  • Column height up to 5 m
  • Electrical festoon supply: runs inside the arm track
  • Material: Stainless steel 304/316
  • Finish: Zinc plated/powder coating