Column Mounted Jib Crane with Clamp Around

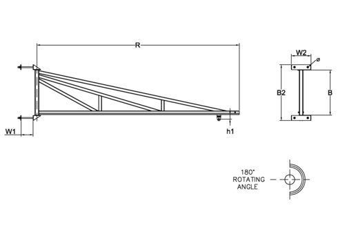
This column mounted jib crane consists of an arm and a pair of brackets that can be clamped around an existing building column/stanchion/pillar. This jib crane provides the most free-running travel along the arm and gives excellent flexibility for rotations of 180°.

Column fixing is done with clam

Show more

Part code:

This column mounted jib crane consists of an arm and a pair of brackets that can be clamped around an existing building column/stanchion/pillar. This jib crane provides the most free-running travel along the arm and gives excellent flexibility for rotations of 180°.

Column fixing is done with clamping brackets.

Features:

  • Capacity up to 1000 kg
  • Outreach up to 6 m
  • Electrical festoon supply: runs inside the arm track
  • Finish: Zinc plated/powder coating. Stainless steel 304/316